GREENSIDE JUPITER MOON IO – SUNRIVER GOLF RESORT, OREGON – WORLD’S FIRST IOWA-CLASS DREADNAUGHT-DERIVED SUBWOOFER ARRAY ISOLATED 3D VIDEOWALL SYSTEM

IMPRESSIONS

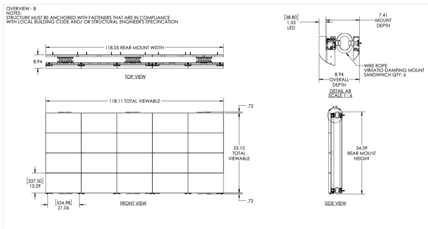
THE WORLD’S ONLY COIL SPRING MOUNTED SUBWOOFER ARRAY MECHANICAL AND WAVE CONCUSSION PROOF 3D ANTIREFLECTIVE .9 MICRO PIXEL IN PACKAGE UNCOATED FOR EXTRA VIEWING PLEASURE. WORLD’S BEST 3D VIDEOWALL INSTALLATION. WITH A VIEW OF THE GOLF COURSE TO BOOT.

4 subwoofers mounted around a videowall using the standard plywood and z clip mounts have and will continue to fall apart - taking you out of the experience.

REAR ENTRY CABINET ENTRY AT SECOND ROW DOES NOT INTERFERE WITH COILS

SAHDOWBOX SEEN FROM OUSDIE

20” WIDE RACK ROOM: MECHANICAL AND ELECTRICAL

THE COIL SHOCK MOUNT VIDEOWALL MOUNT SYSTEM WAS DEVELOPED FOR THE US NAVY TO PROTECT DISPLAYS IN COMMAND AND CONTROL ROOMS AFTER THE INTERNAL SHOCKWAVE OF THE HISTORIC FULL BROADSIDE FIRING OF THE IOWA ON THE ISLAND OF VIEQUES IN PUERTO RICO BROKE THE SAILORS TEETH AND MANY ELECTRONICS. THE GREATEST PEACE DIVIDEND IN THE HISTORY OF HOME CINEMA. NOW FINALLY SUBWOOFER ARRAYS AND VIDEOWALLS PLAY NICE!

PROJECT IO — SUPERVOLCANIC MOON ALLUSION: PRIMORDIAL EXECUTION OF THE SUBWOOFER ARRAY GENERATING MECHANICAL AND AIRBORNE SHOCK, COMPLETE UNPERTURBABILITY FROM SUBWOOFER FORCES. THE COIL SYSTEM, DERIVED FROM NAVAL TECHNOLOGY TO WITHSTAND THE CONCUSSIVE FORCE OF BROADSIDES, ENSURES PROTECTION OF VIDEOWALL MODULES FROM SEPARATION — A WORLD’S FIRST.

IO

AWESOME?

CALIBRATED WITH THE CAMERA SYSTEM SELECTED FOR BEST COLOR IN A 8 WAY SHOOTOUT BY THE WORLD’S MOST REPECTED VIDEOWALL COLORIMETER COMPANY.